












Apartamentul se află într-un bloc nou, dotat cu finisaje premium, la 2 pasi de nisip.
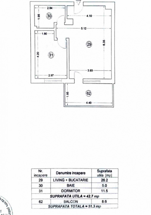
Living spatios cu bucatarie open-space, dormitor separat, baie generoasa si balcon mare unde cafeaua se serveste cu sunetul valurilor pe fundal.
Mobilat simplu si curat, fara experimente inutile.
Bun pentru locuit, excelent pentru vacanta, si foarte convingator ca investitie.