










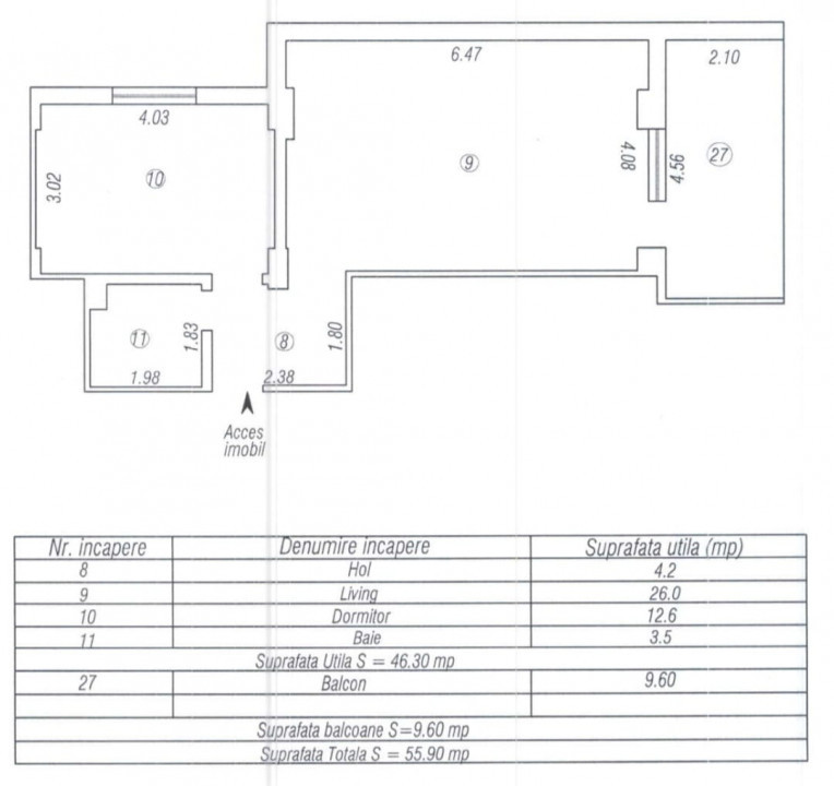
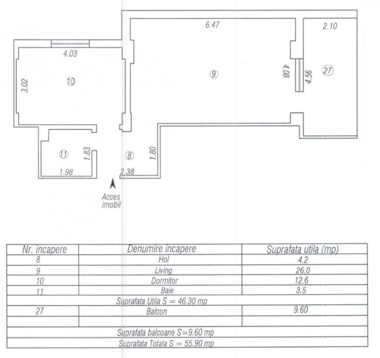
Imaginați-vă trezirea cu sunetul valurilor și o panoramă neîntreruptă a mării chiar din confortul propriului apartament! Situat în primul rând de la plajă, acest apartament cu 2 camere oferă o terasă generoasă cu vedere frontală la mare, unde fiecare răsărit devine un spectacol privat.Spațiul interior este amenajat simplu, dar funcțional, punând accent pe conexiunea directă cu peisajul spectaculos. Fie că îți dorești un refugiu liniștit la malul mării sau o investiție într-o zonă turistică de top, această proprietate îți oferă cea mai râvnită poziție de pe litoral – la doar câțiva pași de nisip și valuri.